






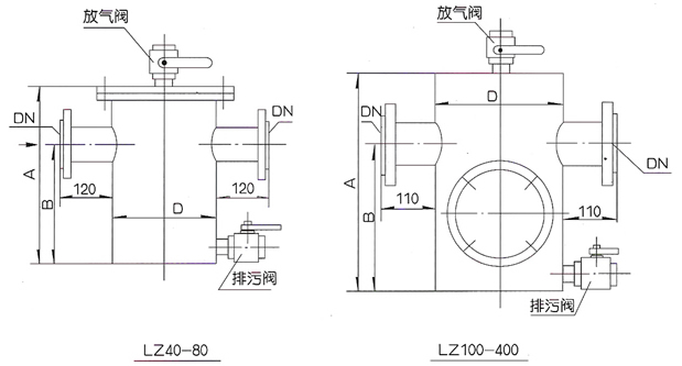
一、立式除污器
本立式除污器為直通式除污器。水從一側接管進入筒體內,另一側接管與筒體內的濾網孔管相連,過濾網孔管是由許多直徑為3.5 -4 毫米的小孔構成。水中的雜質顆粒被網孔濾除,積存在筒體的底部,無雜質顆粒的水經過濾網孔從改廁接管流出。
排污時打開排污閥把積存在下部的雜質污垢排出。在除污器入口與管道之間應裝一閥門,排污時將此閥門關閉,打開排污閥,使水從過濾網孔里到流出,這樣可以使附著在網孔管外部的雜質沖掉。
本立式除污器的工作壓力為 1.0Mpa 。


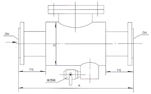
二、臥式除污器
本臥式除污器為直通式除污器,其工作原理與立式除污器相同,水從一側接管進入筒體內,另一側接管與筒體內的濾網孔管相連,過濾網孔管是由許多直徑為 3.5 毫米的小孔構成。水中的雜質顆粒被網孔濾除,積存在筒體的底部,無雜質顆粒的水經過濾網孔從改廁接管流出。
排污時打開排污閥把積存在下部的雜質污垢排出。在除污器入口與管道之間應裝一閥門,排污時將此閥門關閉,打開排污閥,使水從過濾網孔里到流出,這樣可以使附著在網孔管外部的雜質沖掉。
本臥式除污器的工作壓力為 1.0-1.6Mpa 。


三、旋流式除污器
旋流式除污器的工作原理是應用旋轉離心分離原理設計的。具有一定流速的水從除污器的側邊接口流入,進入筒體后延筒體周圍形成旋流、質量較重的泥沙等雜質在離心力和重力的作用下向外運動到筒體內壁,向下旋動落日下部的積污斗中,水從中央管的過過濾網向上流出,網孔直徑 3.5-4 毫米。
排污時打開下部的牌無法將積存的污垢雜質排出。粘附在濾網上的污垢可打開觀察孔蓋濾除。
本旋流式除污器的工作壓力為 1.0—1.6MPa 。

